Hytte Trysil 3

Trysil 3 er en moderne og kompakt hytte som er ideell for en liten familie. Den har en funksjonell planløsning som tilbyr praktisk bruk og effektiv plassutnyttelse.

  • BRA 83,3
  • P-rom
  • 1

Funksjonell planløsning

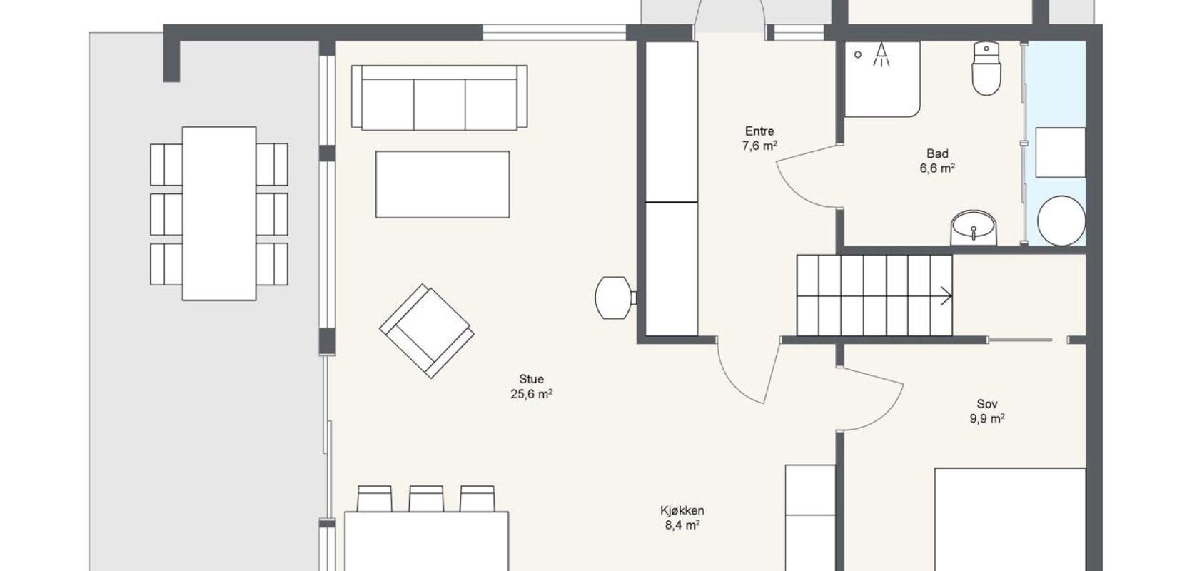
Hovedinngangen til hytta er godt overbygget. Her er også inngang til uteboden som er egnet for lagring av ski, sykler, ved og lignende. Ved hoveddøren finner du et sidevindu som gir innsyn i entreen. Entre har god plass til garderobeskap og ekstra lagringsmuligheter. Badet har inngang fra entreen og er utstyrt med dusj, servant og toalett. I tillegg er det integrert en vaskemaskin og teknisk utstyr på badet, skjult bak en gulv-til-tak skyvedør.

På hovedplanet av hytta finner du et soverom med adkomst fra kjøkkenområdet. Soverommet har en mønt himling som gir rommet høyde og muligheten for ekstra køyesenger.

Kjøkkenet er organisert i en L-form og kan nås fra entreen. Spiseplassen ligger i forlengelsen av kjøkkenet og vender ut mot gavlen av hytta. Vinduer langs hele langveggen gir rikelig med naturlig lys og gir god utsikt. Rommet åpner seg opp i gavlen med mønt himling. Fra stuen er det en skyvedør som fører til en overbygget terrasse.

Ildstedet er strategisk plassert i midten av hoveddelen av hytta, noe som gjør det mulig å nyte ildstedet fra hele området. Hytta er også utformet med tanke på tilgjengelighet på hovedplanet.

Hems med ekstra soveplass

I tillegg har hytta en hems som gir ekstra soveplasser. Under trappen til hemsen er det praktisk lagringsplass som er tilgjengelig fra hovedsoverommet.

Bestill hyttekatalog

Terrengtilpasning

Trysil 3 hytta behøver en flate på ca 15m lengde og 15m bredde i landskapet. Hytta er prosjektert med hensyn til terrenget og kan plasseres i ulike naturskjønne omgivelser, enten det er i fjellet, i skogkledde områder eller i en vakker lomme mellom svabergene ved sjøen.

* Alle bilder og illustrasjoner er til inspirasjon og kan avvike fra endelige tegninger.

Ta kontakt med forhandlet
}